West London House
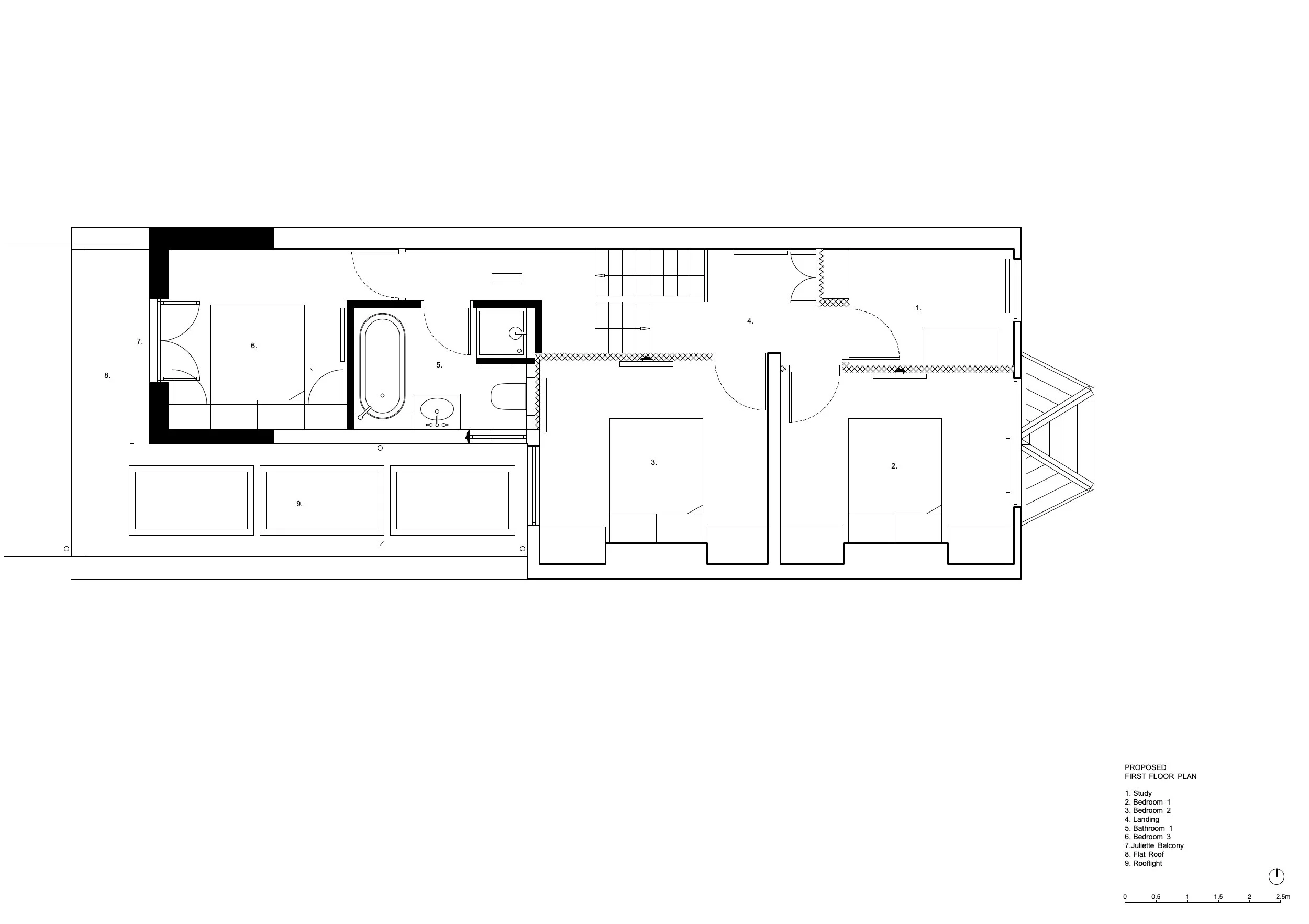
The extension and alteration of a Victorian end-of-terrace house over 3 floors
Garden Extension
Axonometric
Internal View_Kitchen
Internal View_Play Room
The extension and alteration of a Victorian end-of-terrace house over 3 floors
Garden Extension
Axonometric
Internal View_Kitchen
Internal View_Play Room